OBERFEULEN

Location                                                                                                  1840-2050

Charges                                                                                      250

 

Equipements

 

-Triple vitrage

-Volets électriques

-Parlophone

-Chauffage pompe à chaleur

-Chauffage au sol

-Ventilation mécanique

-Ascenseur

-Cuisine équipée

-WC



Caractéristiques

 

-A priori 2 pièces

-WC séparé

-Cuisine séparée

-Cave privée au sous-sol

-Emplacements extérieurs

 

-Charges: 250 €

-Garantie: 4000 €

-Surface: 97-108 m²

-Etage: Rdch et 2ième

-Classe énergétique: AA

-Durée du bail minimum: 3 ans

-Disponibilité: 12/2025

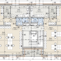
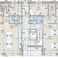
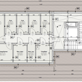
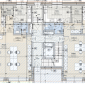
Description

4 bureaux/cabinets indépendants à louer à Oberfeulen.

Rez-de-Chaussée:

-Bureau A de 97 m², 1840 € + 250 € charges.

-Bureau B déjà réservé.

Premier étage:

-Bureau C de 108 m², 2050 € + 250 € charges.

-Bureau D de 99 m², 1880 € + 250 € charges.

 

La zone de stationnement se trouve à l'arrière du bâtiment. Tous les étages sont accessibles par un ascenseur. La répartition des pièces reste à définir par le locataire.

Les bureaux conviennent aux professions libérales comme architectes, médecins, avocats, bureau d'études, etc. 

 

Les atouts de ce bien:

-1ere location

-bâtiment à basse énergie

-emplacement intéressant sur les axes Nord-Sud et Est-Ouest 

-à coté des villes d'Ettelbruck et de Diekirch 

 

Contactez-nous pour toutes informations complémentaires!


Inhalte von Google Maps werden aufgrund deiner aktuellen Cookie-Einstellungen nicht angezeigt. Klicke auf die Cookie-Richtlinie (Funktionell), um den Cookie-Richtlinien von Google Maps zuzustimmen und den Inhalt anzusehen. Mehr dazu erfährst du in der Google Maps Datenschutzerklärung.